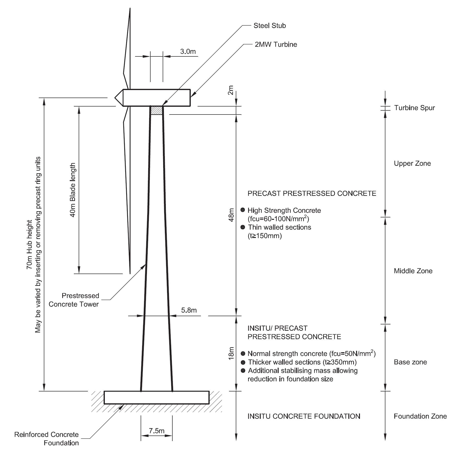
Five wind turbines crashed to the ground during unexceptional weather conditions leading to an investigation by the Health and Safety Executive. The fifth collapse at Winsdon Farm in north Petherwyn, Cornwall triggered the inquiry in 2013, a 40m Gaia Wind GW133 11kW turbine. Three of the foundation rods had failed due to fatigue cracking and tensile overload, this then lead to tensile overload and complete fracture of the remaining rods. It was found that the lower part of the rods were not under tension and therefore lead to cyclic loading over a period of time, a common flaw to all five turbine structures. The rods were found to be of reduced quality as well. Poor site locations added to the problem with greater wind effects and therefore loading to the towers beyond expected design margins. 10 of the 80 1st generation turbines were found to have at least one rod failure. Remedial work has been carried out accompanied by regular inspections, to ensure future safety .
Recommendations included re-evaluation of design, higher quality assurance, more stringent installation procedures, and comprehensive risk assessments of the siting of turbines.
By Mike Osborn
Quotation Corner:
“Never put off until tomorrow what you can do the day after tomorrow” – Mark Twain
“If you’re not failing every now and again, it’s a sign you’re not doing anything very innovative” – Woody Allen
PS If you have enjoyed the blog please forward to those who might be interested, many thanks in advance, Mike


Reblogged this on FLYWHEEL Re-Invented.
LikeLike
Very interesting Mike
LikeLike
Thanks Ken, wind turbines are not as straight forward as you think !
LikeLike